陆良论坛

 找回密码
 注册
查看: 6336|回复: 10

[晒晒我家] 圣邦新城现代小清新设计——午后.青柠

[复制链接]
发表于 2015-4-12 10:13:53 | 显示全部楼层 |阅读模式
都说,家是幸福的港湾,是心灵的归宿,回到家,沉浸在自己的世界中,或约三两好友一起看看电影喝喝酒。
鏂藉伐瀹屾垚-Model.jpg
鏁堟灉3鍓?湰.jpg
鏁堟灉2鍓?湰.jpg
鏁堟灉1鍓?湰.jpg
鏁堟灉4鍓?湰.jpg
发表于 2015-4-12 10:20:46 | 显示全部楼层
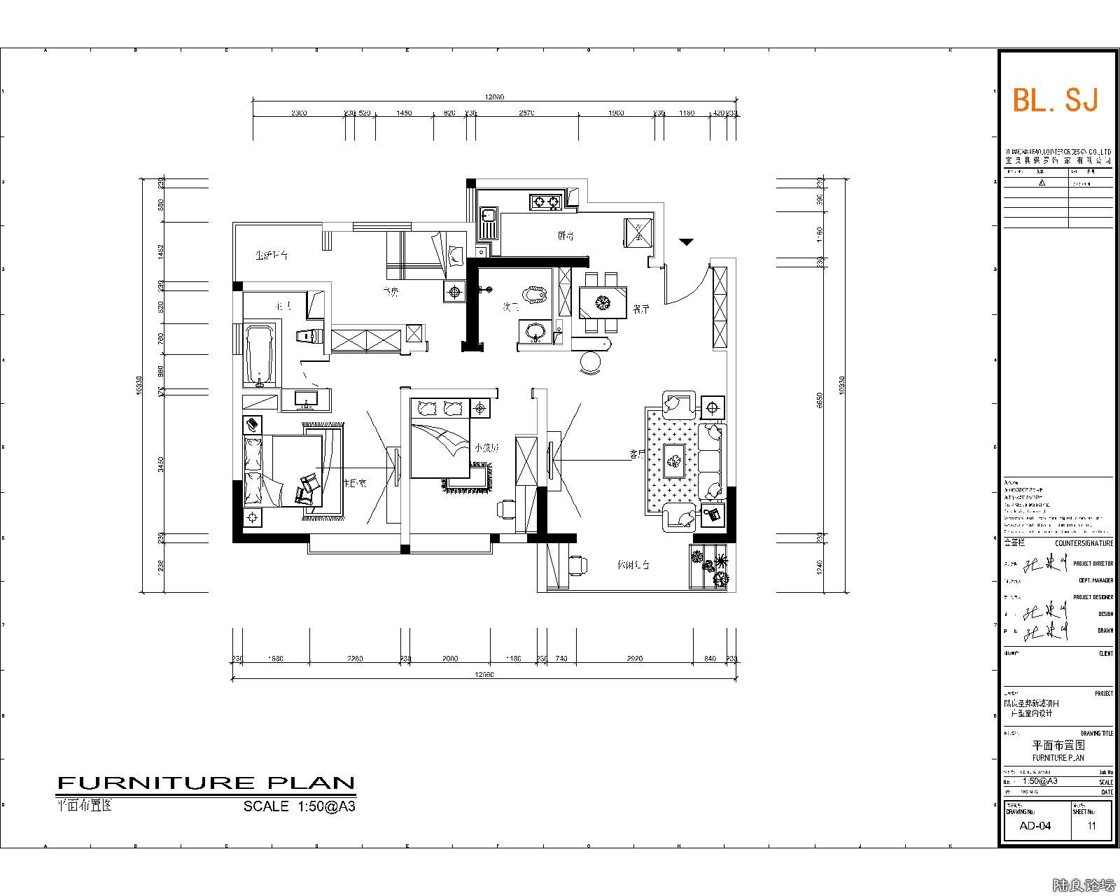
两个厕所是不是有点浪费空间

点评

我觉得也是...........  详情 回复 发表于 2015-4-12 12:55
回复 支持 反对

使用道具 举报

发表于 2015-4-12 12:21:24 | 显示全部楼层
如果是一栋二单元01  02户型 这样设计就不妥当了
回复 支持 反对

使用道具 举报

发表于 2015-4-12 12:55:42 | 显示全部楼层
遇女心惊 发表于 2015-4-12 10:20
两个厕所是不是有点浪费空间

我觉得也是...........
回复 支持 反对

使用道具 举报

发表于 2015-4-12 18:30:52 | 显示全部楼层
米线~~~~~~~~~~~~~~~~~~~~~
回复

使用道具 举报

发表于 2015-4-13 11:55:01 | 显示全部楼层
漆的颜色可以 其他不怎么样
回复 支持 反对

使用道具 举报

头像被屏蔽
发表于 2015-4-15 18:04:40 | 显示全部楼层
提示: 作者被禁止或删除 内容自动屏蔽
回复 支持 反对

使用道具 举报

头像被屏蔽
发表于 2015-4-15 18:06:48 | 显示全部楼层
提示: 作者被禁止或删除 内容自动屏蔽
回复 支持 反对

使用道具 举报

发表于 2015-4-15 21:56:07 | 显示全部楼层
我觉得也是   
回复 支持 反对

使用道具 举报

发表于 2015-4-17 00:40:39 【手机网友】 | 显示全部楼层
急需资金找宜信普惠- 1.无抵押无担保手续简便 2.最低0.78~2.33利率 3.最快2~3天获得资金支持 4.无任何贷前费用 收费透明 电话_13508740915
回复 支持 反对

使用道具 举报

您需要登录后才可以回帖 登录 | 注册

本版积分规则

手机版|小黑屋|Archiver|陆良网 ( 滇ICP备2022000708号-2 )

法律顾问

GMT+8, 2026-1-29 20:21 , Processed in 0.058620 second(s), 23 queries , Gzip On.

中国 © 陆良网 2008-2023|关于陆论

运营机构:陆论工作室|站务QQ:450043295

Powered by Discuz!|滇网安备53032203502002号

快速回复 返回顶部 返回列表